2025 - Prueba dinámica Pilote Atracadero Isla Venado-Náutica JJ
(1) Prueba dinámica en rehinca a pilotes tubulares de acero 40 cm de diámetro 16 mm de espesor y de 12 m de largo. Duque de Alba para el Embarcadero Isla Venado. 997 kN de capacidad última.




2024 - Pruebas de Carga Dinámica, Falmouth, Jamaica - COMSA
(3) Pruebas dinámicas pilotes de 1220 mm diámetro, 19 mm de espesor, 24 m de largo. Capacidades de 3,3 a 5,1 MN. Muelle de Cruceros de Falmouth, Jamaica.




2022-2023 - Reposición Muelle Pto. Jimenez - COPISA
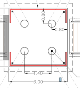
Muelle Cabotaje (2) Duques soporte rampa y atraque Ferries. Pilotes tubulares de acero de 400-500 x 16 mm (3) Pruebas dinámicas (PDA). Capacidades 400-500 kN




2020 - Reposición Muelle Municipal Golfito - Nautica JJ



2019 - Prueba Lateral Muelle Caucedo-OUGAN/Mota Engil
(1) Prueba lateral pilote diámetro 1.200 mm, longitud 9 m, capacidad 2.1 MN Comprobación de los anclajes de la pantalla. Muelle Caucedo, Boca Chica, República Dominicana. Para OUGAN. Contratista Mota-Engil. Diseño, instrumentación y ejecución prueba.



2017 - Muelle Ferries Paquera y Naranjo (II Etapas)- Nautica JJ



2016 - Etapa 3-A Muelles Flotantes G,H,J,K– Marina Pez Vela



2015 - Pruebas de Carga Estáticas y Dinámicas – ICA-MECO




2014 - Muelle Ferries, Resort World Bimini, Bahamas- COMSA




2014 - Nuevo Duque Alba Sur Punta Morales- HSOLIS



2013 - Pruebas Carga Dinámica Muelle Granelero- COMSA


